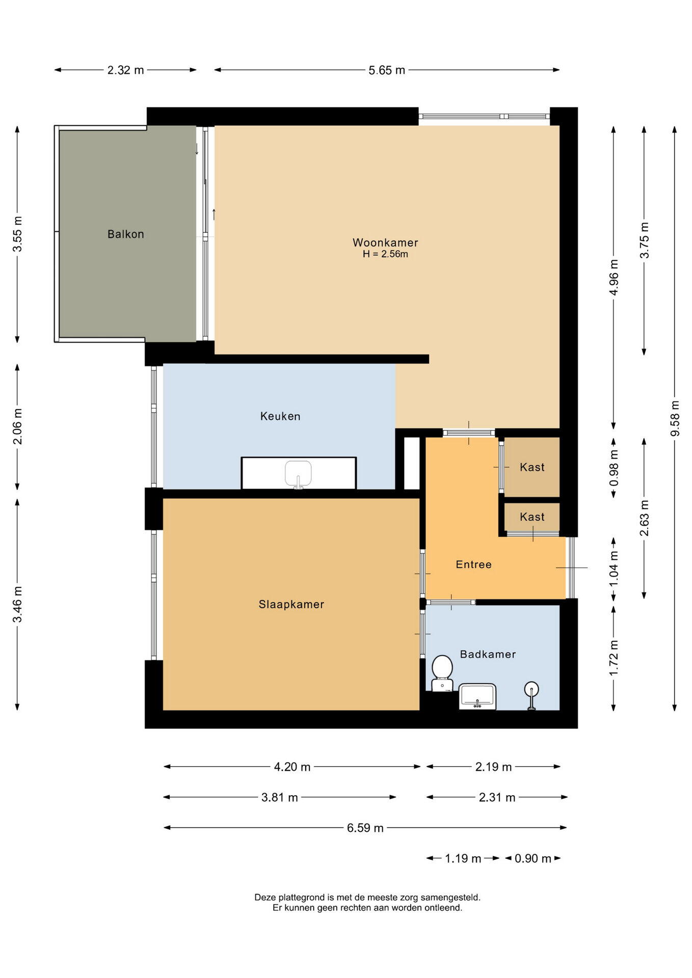
- Woonoppervlakte
- Circa 59 m²
- Inhoud
- Circa 190 m³
- Bouwjaar
- Gebouwd in 1975
- Aantal kamers
- 2 kamers (1 slaapkamers)
Voordat deze woning op de vrije markt wordt aangeboden, krijgen huurders van een sociale huurwoning van Portaal, Woonwaarts, Talis en SSH& in de gemeenten Nijmegen, Wijchen, Beuningen en Druten voorrang om deze woning te kopen. Wil je als huurder in aanmerking komen voor deze voorrangsregeling? Maak dan uiterlijk 3 september 2025 je interesse kenbaar bij de verkopende makelaar. Daarna is er geen garantie op bezichtigen en deelname.
Dit ruime en lichte 2-kamer hoekappartement gelegen op de tweede verdieping, compleet met een eigen terras. Gelegen binnen een kleinschalig appartementencomplex. Bij het appartement hoort een eigen (fietsen)berging en op korte afstand zijn diverse openbare parkeergelegenheden.
De wijk kenmerkt zich door een mix van eengezinswoningen en in dit deel van de wijk enkele kleinere appartementencomplexen. Ruim opgezet en met veel groen zoals in heel Dukenburg het geval is. Op korte afstand is winkelcentrum Dukenburg met diverse openbare- en winkelvoorzieningen en een NS-treinstation aan de spoorlijn Nijmegen-Den Bosch. Het openbaar vervoer is ook qua busverbinding prima en voor de auto is meer dan voldoende openbare parkeerruimte.
Appartement:
Gemeenschappelijke ingang met brievenbussen en trapopgang. Entree; hal met meter-/provisiekast; woonkamer voorzien een laminaatvloer, schuifpui naar het balkon, 1 slaapkamer, ruime badkamer voorzien van een douche, vaste wastafel, toilet en aansluiting voor de wasmachine. Keuken voorzien van eenvoudig keukenblok.
Bijzonderheden:
- Blokverwarming;
- Centrale warmwatervoorziening;
- Energielabel C;
- Schuifpui;
- Veel groen en ruim voldoende parkeergelegenheid;
- Bijdrage VvE is circa € 212,04 per maand inclusief water; (excl. voorschot stookkosten);
- projectnotaris Bruggink & van Beek Notarissen Wijchen
- de taxatiewaarde is € 250.000,-, deze wijkt af van de vraagprijs. De vraagprijs is leidend.
- Zelfbewoningsplicht/verhuurverbod en anti-speculatiebeding van 4 jaar van toepassing;
- KOOP NU TIJDELIJK MET EEN GUNSTIGE GEMEENTELIJKE STARTERSLENING: EXCLUSIEF VOOR STARTERS, VRAAG
NAAR DE VOORWAARDEN! OP = OP.
Overdracht
- Vraagprijs
- € 255.000 k.k.
- Status
- Verkocht
- Aanvaarding
- In overleg
Bouw
- Object type
- Portiekflat, appartement
- Soort bouw
- Bestaande bouw
- Bouwjaar
- 1975
- Soort dak
- Plat dak bedekt met bitumineuze dakbedekking
Oppervlakte en inhoud
- Woonoppervlakte
- 59 m²
- Inhoud
- 190 m³
- Externe bergruimte
- 6 m²
- Gebouwgeb. buitenruimte
- 8 m²
Indeling
- Aantal kamers
- 2 kamers (1 slaapkamers)
- Aantal badkamers
- 1 badkamer
- Badkamervoorzieningen
- Toilet, douche, wastafel, wasmachineaansluiting
- Aantal woonlagen
- 1 woonlaag
- Voorzieningen
- Schuifpui
Energie
- Energielabel
- C
- Energielabel registratie
- 09-01-2019
- Isolatie
- Muurisolatie, dubbel glas
- Verwarming
- Blokverwarming
- Warm water
- Centrale voorziening
Buitenruimte
- Ligging
- Aan rustige weg, in woonwijk
- Tuin
- Zonneterras
Bergruimte
- Schuur / berging
- Vrijstaand steen
Garage
- Soort garage
- Geen garage
Parkeergelegenheid
- Soort parkeergelegenheid
- Openbaar parkeren
VvE checklist
- Inschrijving KvK
- Ja
- Jaarlijkse vergadering
- Ja
- Periodieke bijdrage
- Ja
- Reservefonds aanwezig
- Ja
- Onderhoudsplan
- Ja
- Opstalverzekering
- Ja
Indicatie hypotheeklasten
Eigen inleg:
Spaargeld / overwaarde
Rente:
Laagste 10-jaars rente
Laagste 10-jaars rente
2,78% - Centraal Beheer - NHG
3,04% - Centraal Beheer - 80%
Laagste 20-jaars rente
3,29% - Centraal Beheer - NHG
3,52% - Centraal Beheer - 80%
Laagste 30-jaars rente
3,41% - Centraal Beheer - NHG
3,7% - Argenta - 80%
Hypotheek:
Bruto maandlasten: € 0 p/m
Netto maandlasten: € 0 p/m
Hoe berekenen we dit?
Het rentepercentage is gebaseerd op de laagste 10 jaars vaste rente voor één hypotheekdeel. De vermelde rente (2.78% met NHG) is gecontroleerd op 27-04-2026. Deze berekening is gebaseerd op een annuïteitenhypotheek die volledig wordt afgelost, waarbij de maandlasten gedurende de gehele looptijd gelijk blijven. De werkelijke rente en netto maandlasten kunnen variëren, afhankelijk van uw persoonlijke situatie en de hypotheekverstrekker. Raadpleeg een financieel adviseur voor een nauwkeurige berekening en advies. Aan deze berekening kunnen geen rechten worden ontleend; het dient enkel als indicatie.
Documentatie
Kadastrale kaart
Leefomgeving
Plattegronden PDF
BAG uittreksel
Brochure
Bezoek onze website
Inloggen move.nl
Bezichtiging
Bod uitbrengen
Waardebepaling
Zoekopdracht
Alles downloaden
Zonnegrenzen bekijken
Op de kaart
Inwoners in Nijmegen
Cijfers voor postcodegebied 6537
- Totaal aantal inwoners
- 176745 inwoners
- Mannen
- 48%
- Vrouwen
- 52%
Inwoners in Nijmegen
Cijfers voor postcodegebied 6537
- tot 15 jaar
- 14%
- 15 tot 25 jaar
- 17%
- 25 tot 35 jaar
- 27%
- 45 tot 65 jaar
- 25%
- 65 en ouder
- 17%
Huishoudens in Nijmegen
Cijfers voor postcodegebied 6537
- Eenpersoons zonder kinderen
- 46%
- Meerpersoons zonder kinderen
- 22%
- Huishoudens zonder kinderen
- 68%
Huishoudens in Nijmegen
Cijfers voor postcodegebied 6537
- Huishoudens met één kind
- 12%
- Huishoudens met meerdere kinderen
- 20%
- Huishoudens met kinderen
- 32%
Woningen in Nijmegen
Cijfers voor postcodegebied 6537
- Woningen voor 1945
- 1%
- Woningen tussen 1945 en 1965
- 1%
- Woningen tussen 1965 en 1975
- 78%
- Woningen tussen 1975 en 1985
- 18%
- Woningen tussen 1985 en 1995
- 2%
Woningen in Nijmegen
Cijfers voor postcodegebied 6537
- Woningen tussen 1995 en 2005
- 1%
- Woningen tussen 2005 en 2015
- 1%
- Woningen na 2015
- 1%
- Huurwoningen
- 60%
- Koopwoningen
- 40%
Overige in Nijmegen
Cijfers voor postcodegebied 6537
- Gemiddelde WOZ waarde
- € 167.000,-
- Personen onder de 65 met uitkering
- 16%
Overige in Nijmegen
Cijfers voor postcodegebied 6537
- Adressen per km²
- 1916
- Stedelijkheid (schaal 1 op 5)
- 80%
Korte feiten over Nijmegen
Nijmegen, de oudste stad van het land, stad van evenementen en plezier. Van kennis en studenten, van de Waal, bos en heuvels. Stad van de Vierdaagse en de Zevenheuvelenloop. Stad met een enorme historie en een mooie toekomst. Nijmegen, een omgeving om heerlijk te wonen!
Nijmegen (in het Nijmeegs: Nimwèège, onder jongeren: Nimma, in het Duits: Nimwegen, Latijn: Noviomagus, Frans: Nimègue, Spaans en Italiaans: Nimega) is een stad en gemeente in de Nederlandse provincie Gelderland, dicht bij de grens met Duitsland. De gemeente telt 182.399 inwoners (31 januari 2023) en is qua inwonertal de grootste gemeente van Gelderland en daarnaast de tiende van Nederland.
De stad ligt grotendeels op de zuidelijke oever van de Waal, aan de voet van een stuwwal. Na de Tweede Wereldoorlog breidde de stad zich naar het zuiden en westen uit. Eind jaren negentig volgde de uitbreiding naar het noorden, de rivier over: de zogenoemde Waalsprong. In het gebied rond en tussen de reeds bestaande dorpen Lent, Ressen en Oosterhout is vanaf eind jaren negentig veel nieuwbouw gepleegd.
Nijmegen heeft een lange geschiedenis die meer dan 2000 jaar teruggaat. Als Ulpia Noviomagus Batavorum kreeg het rond het jaar 100 marktrechten. In 1230 werd Nijmegen vrije rijksstad en in 1402 hanzestad. Nadat Nijmegen tussen 1655 en 1679 al eens een Kwartierlijke Academie huisvestte, is de stad sinds de komst van de Katholieke Universiteit (sinds 2004 ook bekend als Radboud Universiteit) in 1923 een universiteitsstad. De gemeente is aangesloten bij het samenwerkingsverband Euregio Rijn-Waal. Van oudsher maakt Nijmegen met enkele andere gemeentes in de omgeving, zoals Wijchen, Beuningen en Berg en Dal, deel uit van het Rijk van Nijmegen.
Indien u vragen heeft of u wilt een bezichtiging inplannen, dan kunt u gebruik maken van het formulier hiernaast. Er zal daarna op korte termijn contact met u worden opgenomen.
St. Annastraat 18
6524 GC, Nijmegen
024 360 7055 nijmegen@driessenmakelaardij.nl www.driessenmakelaardij.nlContact opnemen
Al 40 jaar uw huismakelaar
Ondernemende makelaar met ambitie
U wilt een huis kopen, verkopen of laten taxeren. Het liefst schakelt u een betrouwbare makelaar in bij u in de buurt. Maar hoe vindt u precies de makelaar die het best bij u past? Het aanbod is al zo groot.
Driessen Makelaardij maakt uw keuze een stuk gemakkelijker. Hoe? Allereerst zijn we al veertig jaar een begrip in de regio. Met een kantoor in Wijchen en in Nijmegen kennen wij de lokale huizenmarkt op ons duimpje. En niet onbelangrijk: de huizenmarkt kent ons. ‘Want vaak is de eerste stap van een woningzoeker de stap naar ons kantoor.’ Hierdoor weten wij vraag en aanbod snel bij elkaar te brengen en perfect in te spelen op de wensen van klanten en potentiële klanten. Bovendien zijn we aangesloten bij de NVM, de grootste brancheorganisatie in de makelaardij. Onze mensen zijn dus uitstekend in staat het hele aan- en verkooptraject van begin tot eind professioneel te begeleiden.
Uw ambitie is onze ambitie. Dat wil zeggen: u verwacht van ons dat we tot het uiterste gaan u die kwaliteit te bieden waarom we al zo lang bekend staan. Daar mag u ons aan houden!
Nieuwste reviews
-
Tolhuis 7618
Snel en makkelijk bereikbaar. Goede communicatie. Uitstekende kennis van de markt. Deskundig ,vriendelijk en betrouwbaar.
-
Molenstraat 43 G
Deskundig, hartelijk, snel en tegen een scherpe prijs.Wij zijn ontzettend tevreden over Mario en Maartje van Driessen Makelaardij.
-
Horstacker 2309
Mario is zeer deskundig. Heeft goed geadviseerd. De bezichtigingen heel goed gepland. Ik ben door het kantoor goed op de hoogte gehouden.Mij...